home
website_status
Verkauft
business
Zimmer
4
square_foot
Wohnfläche
95,00 m²
Objektnummer
42

Preise

Provision
3,57 %
provisionspflichtig
Ja
verfügbar ab
sofort

Flächen

Wohnfläche
95 m²
Grundstücksfläche
800,00 m²
Anzahl Zimmer
4
Anzahl Schlafzimmer
2
Anzahl Badezimmer
1
Anzahl Stellplätze
1

Austattung

Wanne
Ja
Keller
Ja
Garage
1
Freiplatz
1
Teppich
Ja
Fliesen
Ja

Objektbeschreibung

Zum Verkauf steht dieses freistehende Einfamilienhaus in einer ruhigen Wohnsiedlung von Dresden-Niedersedlitz. Das teilunterkellerte Haus wurde 1938 in massiver Bauweise auf dem ca. 800 m² großen Grundstück errichtet.

Das Haus betritt man über den angebauten Windfang, der aufgrund des großen Fensters einen hellen und einladenden Eingangsbereich bietet. Der Windfang ist gleichzeitig auch ein praktischer Platz für die Garderobe und Schuhschrank. Im Erdgeschoss befindet die zweckmäßig geschnittene Küche mit dem direkt angrenzenden Esszimmer, welches den Durchgang zum geräumigen Wohnzimmer darstellt. Das Wohnzimmer überzeugt ebenfalls mit sehr guten Lichtverhältnissen aufgrund der großen Fenster in Richtung Osten und Süden. Das Badezimmer wurde in den 90er Jahren saniert und ist mit einer Badewanne, WC und Waschbecken ausgestattet. Bei Bedarf wäre eine Vergrößerung des Badezimmers unter Einbeziehung des angrenzenden Werkstattraumes möglich.

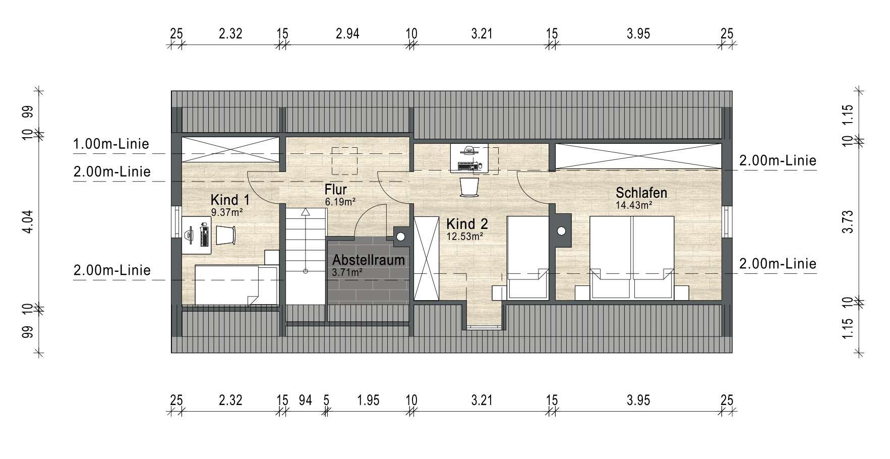
Das Dachgeschoss beherbergt ein Kinder- bzw. Arbeitszimmer sowie das Hauptschlafzimmer, welches über ein geräumiges Durchgangszimmer erreichbar ist.
Im Flur des Dachgeschosses befindet sich zudem ein kleiner, praktischer Abstellraum.

Das Haus ist teilunterkellert. Die beiden Kellerräume, die z.B. für Lagerzwecke genutzt werden können, sind gefliest und verfügen über eine Höhe von ca. 1,90 m.

Ein Highlight ist zweifelsfrei das weitläufige und ebenerdige Grundstück, welches sich hinter dem Haus erstreckt. Hier ist es ruhig, sonnig und grün - der ideale Ort für Kinder zum Spielen oder für die Erholung vom stressigen Alltag. Das Grundstück besteht derzeit im Wesentlichen aus einer großen Rasenfläche und bietet die ideale Ausgangslage für Ihre eigenen Gestaltungsideen. Vielleicht ein Pool und eine schöne Terrasse? Platz dafür wäre auf jeden Fall ausreichend vorhanden. Derzeit ist das Grundstück neben dem Wohnhaus mit einem massiven Gartenhaus aus dem Jahr 1995 und einer Garage sowie einem Geräteschuppen bebaut.

Das Haus wurde bisher nur behutsam saniert. So wurde z.B. 2006 das Dach mit feuerverzinktem Stahlblech neu gedeckt und 2013 ein neuer Gasbrennwertkessel installiert sowie im Zuge dessen die Heizkörper erneuert.

Überzeugen Sie sich vor Ort von der idyllischen Lage und dem Potenzial dieser Immobilie und vereinbaren Sie einen Besichtigungstermin mit uns. Wir freuen uns auf Ihre Anfrage!

Ausstattung

- Glasfaser-Anschluss
- teilunterkellert
- Gartenhaus
- Gas-Brennwertkessel (2013 erneuert)
- Außenrollläden im EG
- Garage (B: ca. 2,9 m / L: ca. 5 m / lichte Höhe: ca. 1,85 m)
- Geräteschuppen
- Werkstattraum
- Raumhöhen EG: ca. 2,40 m
- Raumhöhen DG: ca. 2,20 m
- Raumhöhen KG: ca. 1,90 m

Lage

Der Stadtteil Niedersedlitz befindet sich im Südosten Dresdens und wird überwiegend von kleineren Stadtvillen und Einfamilienhäusern geprägt. Viele Grünanlagen und Bäume verleihen Niedersedlitz zusätzlich einen gemütlich ruhigen und vorstädtischen Charakter.

Auch infrastrukturell ist die Wohnlage bestens aufgestellt. Zahlreiche Geschäfte des täglichen Bedarfs sowie das große, modernisierte Einkaufszentrum Kaufpark Dresden mit Supermärkten, Apotheke, Bäckerei sind im Umkreis von etwa einem Kilometer ansässig. Darüber hinaus besteht vor Ort ein gutes Bildungs- und Betreuungsangebot. Die nächsten Grundschulen liegen jeweils ca. 1,5 Km entfernt, die nächste Kita ist fußläufig in ca. 5 Minuten erreichbar. Eine neue, moderne Waldorfschule ist ebenfalls in unmittelbarer Nähe entstanden.

Die nächstgelegene Straßenbahn- und Bushaltestelle ist nur ca. 500 Meter vom Haus entfernt. Von hier gelangt man schnell und stressfrei ins Stadtzentrum. Es verkehren u.a. die Straßenbahnlinien 1, 9 und 13 sowie die Buslinie 66. Die Autobahn A17 erreicht man mit dem PKW in nur ca. 5 Minuten.

Energieausweis

  • Heizung
    Zentral
  • Befeuerung
    Gas
  • Wesentliche Energieträger
    Gas
  • Energiepasstyp
    Bedarf
  • Baujahr
    1938
  • Gültig bis
    16.10.2034
  • Ausstelldatum
    17.10.2024
  • Gebäudeart
    wohn

Ansprechpartner

Champions Immobilien
Christoph Vogelsang
Chemnitzer Straße 109
01187 Dresden

Christoph Vogelsang

Christoph Vogelsang, Champions Immobilien, Immobilienmakler in Dresden

Sonstiges

Alle in diesem Angebot enthaltenen Angaben, Darstellungen und Preise stammen ausschließlich vom Eigentümer oder einem Dritten. Eine Haftung unseres Unternehmens hierfür ist ausgeschlossen.

Objektanfrage

Was ist die Summe aus 9 und 6?

(*) Pflichtfelder