euro_symbol
Kaufpreis
139.000,00
business
Zimmer
8
square_foot
Wohnfläche
197,00 m²
Objektnummer
64

Preise

Kaufpreis
139.000,00 EUR
Provision
3,57 %
provisionspflichtig
Ja
verfügbar ab
sofort

Flächen

Wohnfläche
197 m²
Grundstücksfläche
2.190,00 m²
Anzahl Zimmer
8
Anzahl Schlafzimmer
3
Anzahl Badezimmer
2
Anzahl Balkone
1
Anzahl Stellplätze
1

Austattung

Wanne
Ja
Dusche
Ja
Keller
Ja
Garage
1
Freiplatz
1
Teppich
Ja
Fliesen
Ja

Objektbeschreibung

Zum Verkauf steht dieses schöne Einfamilienhaus, welches im Jahr 1935 errichtet und 1986 um einen Anbau erweitert wurde. Somit bietet das Haus jetzt mit ca. 197 m² Wohnfläche und 8 Zimmern reichlich Platz für eine große Familie. Das Haus steht auf einem 2.190 m² großen Hanggrundstück, welches an einer sehr ruhigen Nebenstraße in Zehren gelegen ist. Im Inneren des Hauses sind Renovierungs- und Sanierungsmaßnahmen erforderlich, um einen zeitgemäßen Wohnstandard herzustellen. Die bauliche Substanz ist jedoch solide und bildet eine gute Ausgangslage für die Verwirklichung Ihrer Wohnträume. In den 90er Jahren wurde die Elektrik in großen Teilen erneuert sowie doppelt verglaste Kunststofffenster eingebaut. Das Satteldach wurde im Jahr 2007 neu gedeckt und im Zuge dessen mit einer Zwischensparrendämmung gedämmt. Die Abwasserentsorgung erfolgt über eine vollbiologische Dreikammer-Kläranlage. Ein Nebengebäude in Leichtbauweise hinter dem Wohnhaus diente als Tischlerei. Hier könnte z.B. stattdessen eine sonnige Terrasse für entspannte Grillabende entstehen.

Das Erdgeschoss betritt man über die große Diele, an die sich linker Hand der Wintergarten anschließt. Ein schöner Platz, um in Ruhe einen Kaffee zu genießen und dabei durch die große Glasfront mit Schiebetür den Blick ins Grüne zu schweifen zu lassen. Gegenüber gelangt man zur Küche und zum großzügig geschnittenen Wohnzimmer, welches mit über 30 m² viel Platz für Ihre Einrichtungsideen bietet. Durch die großen Fenster in Verbindung mit der Ausrichtung nach Süden bietet der Wohnbereich zudem ideale Lichtverhältnisse. Nebenan befindet sich ein zweckmäßig geschnittenes Schlafzimmer. Ein Außenrollladen sorgt hier für optimale Verdunkelung. Das Badezimmer im Erdgeschoss ist mit einer bodengleichen Dusche sowie einer Badewanne und WC ausgestattet.

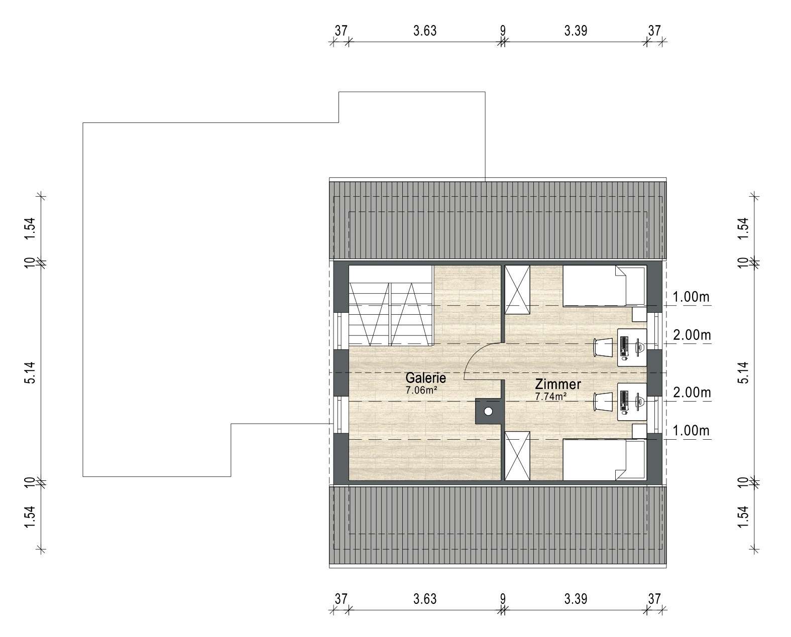
Das Obergeschoss kann als eigenständige Wohnung genutzt werden, da es auch hier eine Küche sowie 2 Schlafzimmer und ein großes Wohnzimmer mit angrenzendem Südbalkon gibt. Das Badezimmer im Obergeschoss ist mit einer Badewanne und einem WC ausgestattet. Der ausgebaute Dachboden bietet 2 weitere Zimmer, die z.B. als Kinderzimmer oder Hobbyraum genutzt werden können.

Im Kellergeschoss befindet sich die Öl-Heizung aus dem Jahr 1993. Des Weiteren beherbergt der Keller einen Hauswirtschaftsraum und einen Lagerraum sowie die Garage.

Überzeugen Sie sich vor Ort vom Potential und den Möglichkeiten, die dieses Haus bietet und vereinbaren Sie einen Besichtigungstermin mit uns. Wir freuen uns auf Ihre Anfrage.

Ausstattung

- Öl-Heizung
- 2 Bäder
- Keller
- Garage
- Wintergarten
- Brunnen
- Einliegerwohnung

Lage

Der idyllische Ortsteil Zehren gehört zur Gemeinde Diera-Zehren im Landkreis Meißen und liegt malerisch am linken Ufer der Elbe, eingebettet in die reizvolle Hügellandschaft des sächsischen Elbtals. Die Umgebung ist geprägt von Wiesen, Feldern und einer naturnahen Wohnlage mit hohem Erholungswert – ideal für alle, die Ruhe und ländlichen Charme schätzen, aber dennoch auf eine gute Erreichbarkeit nicht verzichten möchten.

Verkehrsanbindung:
Zehren ist verkehrstechnisch gut erschlossen. Über die Bundesstraße B6 erreichen Sie in wenigen Minuten die Städte Meißen (ca. 10 km) und Riesa (ca. 20 km). Die Anbindung an die Autobahn A14 (Abfahrt Nossen-Ost) ist ebenfalls in rund 20 Minuten erreichbar, wodurch eine schnelle Verbindung nach Dresden (ca. 35 Autominuten) gewährleistet ist.

Der öffentliche Nahverkehr wird durch Buslinien des Verkehrsverbundes Oberelbe (VVO) abgedeckt, die regelmäßige Verbindungen nach Meißen und in umliegende Orte bieten. Der nächstgelegene Bahnhof befindet sich in Meißen, mit Anschluss an den S-Bahn-Verkehr Richtung Dresden und Leipzig.

Infrastruktur & Versorgung:
Im Ort selbst befinden sich kleinere Einkaufsmöglichkeiten des täglichen Bedarfs, darunter eine Bäckerei und ein Hofladen. Größere Supermärkte, Drogerien und Fachgeschäfte finden Sie im nahegelegenen Meißen.

Bildung & Betreuung:
Für Familien bietet Zehren eine gute Grundversorgung: Eine Kindertagesstätte (Kita „Spatzennest“) befindet sich direkt im Ort. Weiterführende Schulen wie Oberschulen und Gymnasien befinden sich im nahen Meißen und sind durch den Schulbusverkehr gut angebunden.

Freizeit & Naherholung:
Zehren ist ideal für naturverbundene Freizeitgestaltung. Zahlreiche Rad- und Wanderwege, insbesondere der beliebte Elberadweg, laden zu Ausflügen ein. Auch Wassersport an der Elbe sowie Weinverkostungen in den regionalen Weingütern der Umgebung sind möglich. Ein reges Vereinsleben, darunter Sport- und Kulturvereine, trägt zur hohen Lebensqualität bei.

Energieausweis

  • Heizung
    Zentral
  • Befeuerung
    Öl
  • Wesentliche Energieträger
    Öl
  • Energiepasstyp
    Bedarf
  • Baujahr
    1935
  • Gültig bis
    07.05.2035
  • Ausstelldatum
    08.05.2025
  • Gebäudeart
    wohn

Ansprechpartner

Champions Immobilien
Christoph Vogelsang
Chemnitzer Straße 109
01187 Dresden

Christoph Vogelsang

Christoph Vogelsang, Champions Immobilien, Immobilienmakler in Dresden

Sonstiges

Alle in diesem Angebot enthaltenen Angaben, Darstellungen und Preise stammen ausschließlich vom Eigentümer oder einem Dritten. Eine Haftung unseres Unternehmens hierfür ist ausgeschlossen.

Objektanfrage

Was ist die Summe aus 6 und 1?

(*) Pflichtfelder