home
website_status
Verkauft
business
Zimmer
6
square_foot
Wohnfläche
151,00 m²
Objektnummer
15

Preise

Provision
3,57 %
provisionspflichtig
Ja
verfügbar ab
sofort

Flächen

Wohnfläche
151 m²
Grundstücksfläche
500,00 m²
Etagen
2
Anzahl Zimmer
6
Anzahl Schlafzimmer
5
Anzahl Badezimmer
2
Anzahl Stellplätze
2

Austattung

Einbauküche
Ja
Wanne
Ja
Dusche
Ja
Keller
Ja
Gäste WC
Ja
Freiplatz
1
Fliesen
Ja

Objektbeschreibung

Das zum Verkauf stehende vollunterkellerte Einfamilienhaus wurde 1984 auf einem 500 m² großen Grundstück in einer ruhigen Seitenstraße errichtet. Innerhalb der letzten 10 Jahre wurden zahlreiche Modernisierungsmaßnahmen am Objekt durchgeführt, sodass es heute einen modernen und sehr wohnlichen Charakter aufweist. Im Erd- sowie Obergeschoss und dem ausgebauten Dachgeschoss stehen insgesamt großzügige 151 m² Wohnfläche zur Verfügung.

Das Haus betritt man über einen praktischen Windfang. Die Haustür wurde erst im vergangenen Jahr erneuert. Es schließt sich der ebenfalls erst 2023 neu geflieste Flurbereich an. Das Wohnzimmer besticht durch eine große Fensterfront und einen gemauerten Kamin, der nicht nur für angenehme Wärme sondern auch eine gemütliche Atmosphäre in der kühlen Jahreszeit sorgt. An das Wohnzimmer grenzt das Esszimmer an, das direkt mit der Küche verbunden ist. Die Küche ist mit einer top gepflegten Einbauküche aus dem Jahr 2016 ausgestattet. Sie überzeugt durch viel Arbeitsfläche und Stauraum. Im Erdgeschoss ist zudem ein praktischer Hauswirtschaftsraum mit WM-Anschluss und Spülbecken sowie ein Gäste-WC angeordnet, welches im Jahr 2017 modernisiert wurde.
Alle Fenster im Erdgeschoss wurden mit elektrischen Außenrollläden ausgestattet.

Im Obergeschoss befinden sich insgesamt 3 Schlaf-/Kinderzimmer. An das Hauptschlafzimmer schließt sich ein Ankleidebereich sowie ein Bad en suite mit WC und Badewanne an. Ein zweites Badezimmer, welches direkt vom Flur aus erreichbar ist, wurde bereits geschmackvoll modernisiert. Es verfügt über eine Badewanne, eine große Dusche sowie ein Doppelwaschbecken.

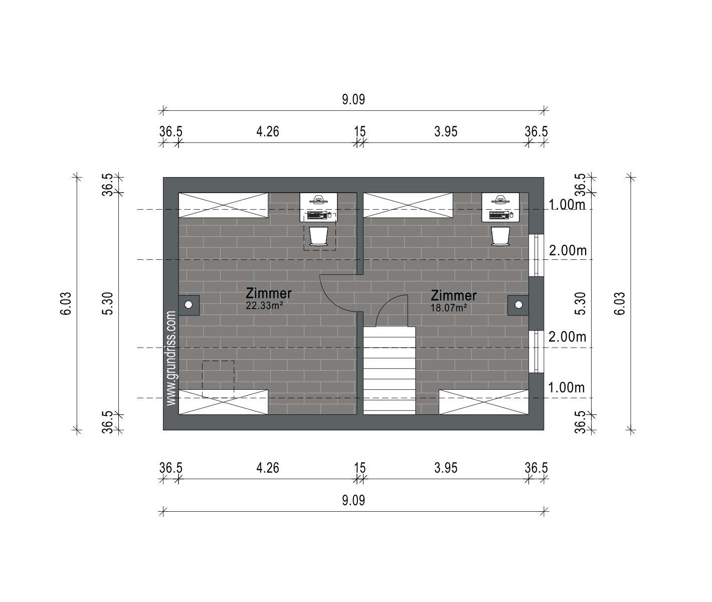
Eine Holztreppe führt hinauf in das voll ausgebaute Dachgeschoss, wo sich 2 weitere Zimmer befinden, die ebenfalls viel Platz für Ihre Ideen und einen tollen Ausblick bieten.

Das Kellergeschoss beherbergt einen Werkstattraum mit Ausgang zum Garten sowie 2 Lagerräume und den Heizungsraum. Hier befindet sich die Ölheizung, welche erst vor 4 Jahren erneuert wurde. Die Außenwände wurden bereits neu abgedichtet. Ebenfalls erneuert wurden im Jahr 2015 bereits die Entwässerung sowie die Wasserleitungen.

Überzeugen Sie sich vor Ort von den Vorzügen dieses gepflegten und soliden Hauses mit praktischer Raumaufteilung, welches bereits in vielen Bereichen modernisiert wurde. Wir freuen uns auf Ihre Kontaktaufnahme.

Ausstattung

- Fenster im EG mit elektr. Außenrollläden
- zahlreiche Fenster 2020-2023 erneuert
- Küche mit EBK
- Hauswirtschaftsraum (2017 modernisiert)
- neue Hauseingangstür (2023)
- Kamin im Wohnzimmer
- Gäste-WC (2017 modernisiert)
- 2 Bäder
- voll unterkellert
- voll möbliert

Lage

Sosa ist ein malerisches Dorf, das im Erzgebirgskreis im Freistaat Sachsen, Deutschland, liegt. Eingebettet in eine idyllische Landschaft aus bewaldeten Hügeln und sanften Tälern, bietet Sosa eine herrliche Kulisse für Naturliebhaber und Erholungssuchende.

Die geografische Lage von Sosa ist geprägt von seiner Nähe zu verschiedenen Erholungsgebieten. Im Westen erstrecken sich die Ausläufer des Erzgebirges mit ihren dichten Wäldern, ideal zum Wandern, Radfahren und Erkunden. Im Osten liegt das Sosatal, ein wunderschönes Tal mit sanften Hügeln und kleinen Bächen, das sich perfekt für gemütliche Spaziergänge und Picknicks eignet.

Der Ort selbst strahlt einen charmanten, ländlichen Charakter aus, mit traditionellen Fachwerkhäusern und gepflegten Gärten. Das Zentrum von Sosa bietet eine kleine aber feine Auswahl an Geschäften, die die Bedürfnisse der Einheimischen und Besucher gleichermaßen befriedigen. Darunter einen Supermarkt, verschiedene Handwerksbetriebe, ein gemütliches Café und einen Landgasthof mit Pension. Zur guten Infrastruktur des Ortes tragen zudem eine Kita sowie eine Grundschule und ein Medizinisches Versorgungszentrum bei. Busverbindungen bestehen nach Aue und Eibenstock.

Energieausweis

  • Heizung
    Zentral
  • Befeuerung
    Öl
  • Wesentliche Energieträger
    Öl
  • Energiepasstyp
    Bedarf
  • Baujahr
    1984
  • Gültig bis
    25.03.2034
  • Ausstelldatum
    26.03.2024
  • Gebäudeart
    wohn

Ansprechpartner

Champions Immobilien
Christoph Vogelsang
Chemnitzer Straße 109
01187 Dresden

Christoph Vogelsang

Christoph Vogelsang, Champions Immobilien, Immobilienmakler in Dresden

Sonstiges

Alle in diesem Angebot enthaltenen Angaben, Darstellungen und Preise stammen ausschließlich vom Eigentümer oder einem Dritten. Eine Haftung unseres Unternehmens hierfür ist ausgeschlossen.

Objektanfrage

Was ist die Summe aus 6 und 6?

(*) Pflichtfelder