home
website_status
Reserviert
business
Zimmer
3
square_foot
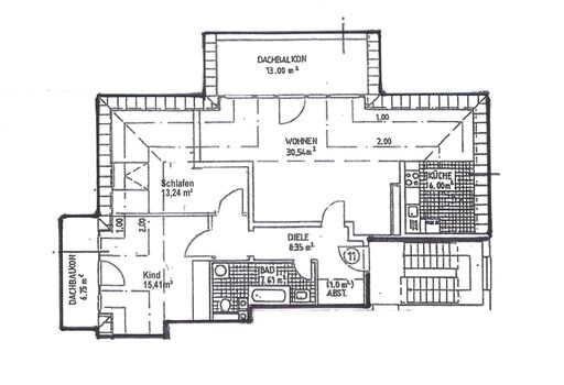
Wohnfläche
92,00 m²
Objektnummer
75

Preise

Provision
3,57 %
provisionspflichtig
Ja

Flächen

Etage
3
Wohnfläche
92 m²
Etagen
3
Etage
3
Anzahl Zimmer
3
Anzahl Schlafzimmer
2
Anzahl Badezimmer
1
Anzahl Balkone
2
Anzahl Stellplätze
1

Austattung

Einbauküche
Ja
Dusche
Ja
Keller
Ja
Gartennutzung
Ja
Tiefgarage
1

Objektbeschreibung

Zum Verkauf steht diese exklusiv ausgestattete 3-Raumwohnung in einer ruhigen Nebenstraße im beliebten Stadtteil Dresden-Plauen. Die Wohnung befindet sich im Dachgeschoss eines 1995 errichteten und top gepflegten Mehrfamilienhauses. Sie zeichnet sich insbesondere durch ihre Helligkeit und den unverbauten, weiten Ausblick aus.

Die Wohnung wird aktuell von den Eigentümern bewohnt und ist nach Verkauf bezugsfrei. In den vergangenen Jahren wurden umfangreiche Modernisierungen an der Wohnung vorgenommen. So wurde u.a. das Badezimmer hochwertig saniert und mit einer großen begehbaren Dusche sowie Doppel-Waschtisch ausgestattet. Ein neuer Fußbodenbelag in Holzoptik sorgt in allen Zimmern für einen modernen Look. Vor ca. 4 Jahren wurde zudem eine energieeffiziente Klimaanlage installiert, die für einen hohen Wohnkomfort in den Sommermonaten sorgt. Ein geräumiger Einbauschrank im Flur bietet praktischen Stauraum. Das Wohnzimmer überzeugt durch sein großzügiges Raumangebot. Hier findet sowohl eine bequeme Sofalandschaft als auch ein Essbereich seinen Platz.
Vom Wohnzimmer gelangt man auf die große Dachterrasse mit West-Ausrichtung, die einen wunderschönen Ausblick über die Umgebung bietet. Hier können Sie im Sommer den Feierabend an der frischen Luft verbringen und dabei den Sonnenuntergang genießen. Die am Wohnzimmer angrenzende Küche wurde vor ca. 5 Jahren mit einer hochwertigen Nolte Küche und Miele-Geräten ausgestattet. Die beiden weiteren Zimmer verfügen jeweils über eine angenehme Größe und bieten viel Platz, um als Schlaf- bzw. Kinderzimmer genutzt zu werden. An allen Fenstern sind elektrische Außenrollläden zur optimalen Verdunkelung installiert. An eines der beiden Zimmer schließt sich eine zweite, kleinere Süd-Terrasse an.

Zur Wohnung gehört des Weiteren ein Kellerabteil sowie ein Einzelstellplatz in der Tiefgarage. Für die Waschmaschine gibt es einen Stellplatz im Waschmaschinen- und Trockenraum. Zur gemeinschaftlichen Nutzung steht zudem ein Fahrradraum zur Verfügung. Auch für das außergewöhnlich große, gepflegte Grundstück, welches sich hinter dem Haus erstreckt, steht ein Mitbenutzungsrecht zu.

Überzeugen Sie sich vor Ort von dem hohen Standard und der wohnlichen Atmosphäre, die diese Wohnung bietet und vereinbaren Sie einen Besichtigungstermin mit uns. Wir freuen uns auf Ihre Anfrage.

Ausstattung

- Klimaanlage
- elektrische Außenrollläden
- 2 Dachterrassen
- Nolte-EBK mit Miele Geräten
- Bad mit großer Dusche und Doppelwaschtisch
- Einbauschrank im Flur
- TG-Einzelstellplatz
- geräumiges Kellerabteil
- Waschmaschinen- und Trockenraum
- Fahrradraum

Lage

Die Eigentumswohnung befindet im südwestlichen Stadtteil Dresden-Plauen, einer beliebten Wohnlage mit urbanem Flair und zugleich angenehmer Ruhe. Die Nachbarschaft ist geprägt von einer Mischung aus gepflegten Mehrfamilienhäusern aus der Gründerzeit, modernen Wohngebäuden sowie kleineren Gewerbeeinheiten, die dem Viertel eine lebendige und zugleich gewachsene Struktur verleihen.

Die Infrastruktur ist hervorragend: Einkaufsmöglichkeiten für den täglichen Bedarf, Bäckereien, Ärzte sowie Apotheken befinden sich in fußläufiger Entfernung. Darüber hinaus bietet das nahegelegene Zentrum von Plauen sowie die Nürnberger Straße ein vielfältiges Angebot an Gastronomie, Einzelhandel und Dienstleistungen. Schulen, Kindergärten und Freizeitmöglichkeiten sind ebenfalls gut erreichbar, was die Lage sowohl für Familien als auch für Berufstätige attraktiv macht.

Die Anbindung an den öffentlichen Nahverkehr ist ausgezeichnet: Fußläufig verkehren z.B. die Straßenbahnlinie 3 sowie Buslinien, die eine schnelle und direkte Verbindung in die Dresdner Innenstadt sowie in andere Stadtteile ermöglichen. Der S-Bahnhof Dresden-Plauen ist nur wenige Minuten entfernt und bietet eine schnelle Anbindung an den Hauptbahnhof sowie das Umland. Auch die Autobahn A17 ist über die nahegelegene Auffahrt Dresden-Südvorstadt in kurzer Fahrzeit erreichbar, was Berufspendlern zugutekommt.

Die Lage zeichnet sich somit durch eine optimale Kombination aus urbanem Wohnen, guter Infrastruktur und sehr guter Verkehrsanbindung aus.

Energieausweis

  • Heizung
    Zentral
  • Befeuerung
    Gas
  • Wesentliche Energieträger
    Gas
  • Energiepasstyp
    Verbrauch
  • Baujahr
    1995
  • Gültig bis
    28.04.2028
  • Ausstelldatum
    29.04.2018
  • Gebäudeart
    wohn

Ansprechpartner

Champions Immobilien
Christoph Vogelsang
Chemnitzer Straße 109
01187 Dresden

Christoph Vogelsang

Christoph Vogelsang, Champions Immobilien, Immobilienmakler in Dresden

Sonstiges

Alle in diesem Angebot enthaltenen Angaben, Darstellungen und Preise stammen ausschließlich vom Eigentümer oder einem Dritten. Eine Haftung unseres Unternehmens hierfür ist ausgeschlossen.

Objektanfrage

Was ist die Summe aus 5 und 8?

(*) Pflichtfelder