home
website_status
Verkauft
business
Zimmer
10
square_foot
Wohnfläche
250,00 m²
Objektnummer
60

Preise

Provision
3,57 %
provisionspflichtig
Ja

Flächen

Wohnfläche
250 m²
Nutzfläche
520 m²
Grundstücksfläche
1.830,00 m²
Anzahl Zimmer
10
Anzahl Badezimmer
2
Anzahl Stellplätze
4

Austattung

Wanne
Ja
Dusche
Ja
Keller
Ja
Freiplatz
1
Linoleum
Ja

Objektbeschreibung

Sie sind auf der Suche nach einer besonderen Immobilie, die Charme und Einzigartigkeit mit den Ansprüchen an modernes Wohnen verbindet? Dann werden Sie hier fündig! Die ehemalige Schule, die durch ihre historische Architektur und den gut erhaltenen Originalzustand besticht, wurde 1888 errichtet und 2019 einer umfassenden Komplettsanierung unterzogen. Das 2-geschossige Schmuckstück befindet sich im Zentrum Frankensteins und ist Teil des malerischen Ensemble bestehend aus Kirche, Pfarrhof und Schule.

Die denkmalgerechte Sanierung erfolgte unter Berücksichtigung aktueller Brandschutzanforderungen und umfasste u.a. eine neue statische Ertüchtigung, moderne Heizungs- und Sanitärsysteme sowie eine komplett neue Elektroinstallation. Eine Pelletheizung mit zwei Pufferspeichern sorgt für eine effiziente und umweltfreundliche Wärmeversorgung. Dezentrale Lüftungsgeräte im Obergeschoss sichern stets ein optimales Raumklima zu. Jedes Detail wurde sorgfältig geplant, um den historischen Charme des Gebäudes zu bewahren und gleichzeitig modernen Wohnkomfort zu bieten.

Das Obergeschoss beherbergt das große Wohnzimmer mit offener Küche. Besondere Highlights in diesem Geschoss sind u.a. die Fußbodenheizung und der Kaminofen, der für eine besondere Gemütlichkeit an kalten Tagen sorgt. Im Obergeschoss befindet sich des Weiteren das aktuelle Hauptschlafzimmer mit angrenzendem Ankleide- oder Kinderzimmer sowie ein hochwertig ausgestattetes Bad mit Doppelwaschtisch und einer großen, bodengleichen Dusche.

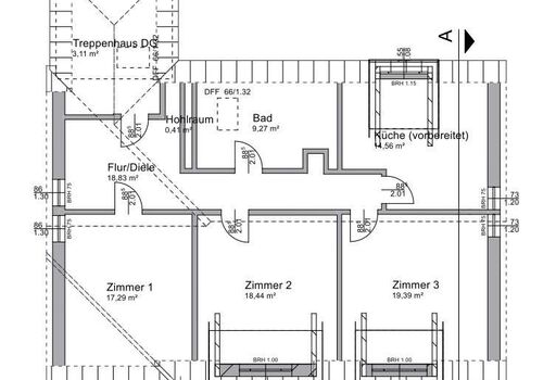
Das Dachgeschoss umfasst insgesamt 4 Zimmer und ein weiteres Bad. Die Räume können ideal als Kinderzimmer oder Büro genutzt werden. Das Badezimmer überzeugt mit einem anspruchsvollem Design und ist mit Walk-In-Shower sowie einer Badewanne und Doppel-Waschbecken ausgestattet. Eines der Zimmer verfügt über Küchenanschlüsse, sodass das Dachgeschoss bei Bedarf als unabhängige Wohneinheit genutzt werden kann. Die Sichtbalken sorgen für Charme und eine gemütliche Atmosphäre. Das Dachgeschoss wurde nach EnEV2016 ausgebaut und mit 16 cm Zwischensparrendämmung (Holzfaser) versehen. Die Nordseite des Daches wurde neu gedeckt, und die Giebel sowie der Drempel wurden mit 16 cm Holzfaser gedämmt. Die Geschossdecke des Erdgeschoss zum Obergeschoss ist mit 10 cm Mineralwolle gedämmt und verfügt über ca. 6 cm EPS unter dem Estrich.

Weitere Highlights sind die Sauna im kleinen Anbau hinter dem Haus sowie die Ausbaureserven im Erdgeschoss und im Nebengebäude. Das 90 m² große Erdgeschoss kann noch nach eigenen Vorstellungen ausgebaut und gestaltet werden und bietet vielfältige Nutzungsmöglichkeiten, z.B. als Werkstatt, Atelier oder Fitnessraum. Im Nebengebäude befanden sich früher 2 Klassenzimmer mit jeweils ca. 40 m² Fläche. Hier haben Sie zusätzliches Potenzial für verschiedene Nutzungen, wie z.B. als Gästehaus, Büro oder Hobbyraum.

Überzeugen Sie sich vor Ort von dieser attraktiven Immobilie und vereinbaren Sie einen Besichtigungstermin mit uns. Wir freuen uns auf Ihre Anfrage!

Ausstattung

- Pelletheizung (Froeling PE 1 35 kW)
- zwei Pufferspeicher (je 700l)
- Fußbodenheizung im Obergeschoss
- Sauna
- 2 Badezimmer mit hochwertiger Ausstattung
- Nebengebäude mit ca. 100 m² Nutzfläche
- Glasfaseranschluss
- vollbiologische Kleinkläranlage
- Wallbox
- Glasfaser-Anschluss

Lage

Der Oederaner Ortsteil Frankenstein liegt etwa 10 Kilometer westlich von Freiberg und rund 6 Kilometer nordöstlich von Oederan. In den nahegelegenen Städten gibt es zahlreiche Einkaufs- und Versorgungsmöglichkeiten sowie Schulen, Ärzte und ein reiches Kulturangebot. Eine Kindertagesstätte ist im ca. 2 km entfernten Memmendorf zu finden.
Frankenstein ist verkehrstechnisch gut angebunden: Die Bundesstraße B173 verläuft in unmittelbarer Nähe und bietet eine schnelle Verbindung nach Freiberg, Dresden und Chemnitz. Die Autobahn A4 ist mit dem PKW in nur ca. 20 Minuten erreichbar. Öffentliche Verkehrsmittel, insbesondere Buslinien, stellen die Anbindung an die umliegenden Städte und Gemeinden sicher. Der Bahnhof Frankenstein mit Zugverbindungen nach Chemnitz und Dresden ist nur ca. 1,2 Km vom Haus entfernt.

Die Region zeichnet sich durch eine hohe Lebensqualität aus. Naturliebhaber und Ruhesuchende finden hier zahlreiche Wander- und Radwege sowie Naherholungsmöglichkeiten.

Frankenstein ist somit ein attraktiver Wohnort für Menschen, die eine naturnahe Umgebung mit guter Anbindung an größere Städte schätzen.

Energieausweis

  • Heizung
    Zentral
  • Befeuerung
    Pellet
  • Wesentliche Energieträger
    Holzpellets
  • Energiepasstyp
    Nicht notwendig
  • Baujahr
    1888
  • Jahrgang
    nicht_noetig
  • Gebäudeart
    wohn

Ansprechpartner

Champions Immobilien
Christoph Vogelsang
Chemnitzer Straße 109
01187 Dresden

Christoph Vogelsang

Christoph Vogelsang, Champions Immobilien, Immobilienmakler in Dresden

Sonstiges

Alle in diesem Angebot enthaltenen Angaben, Darstellungen und Preise stammen ausschließlich vom Eigentümer oder einem Dritten. Eine Haftung unseres Unternehmens hierfür ist ausgeschlossen.

Objektanfrage

Bitte addieren Sie 8 und 8.

(*) Pflichtfelder